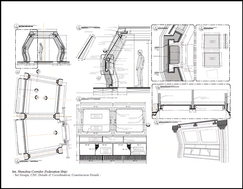
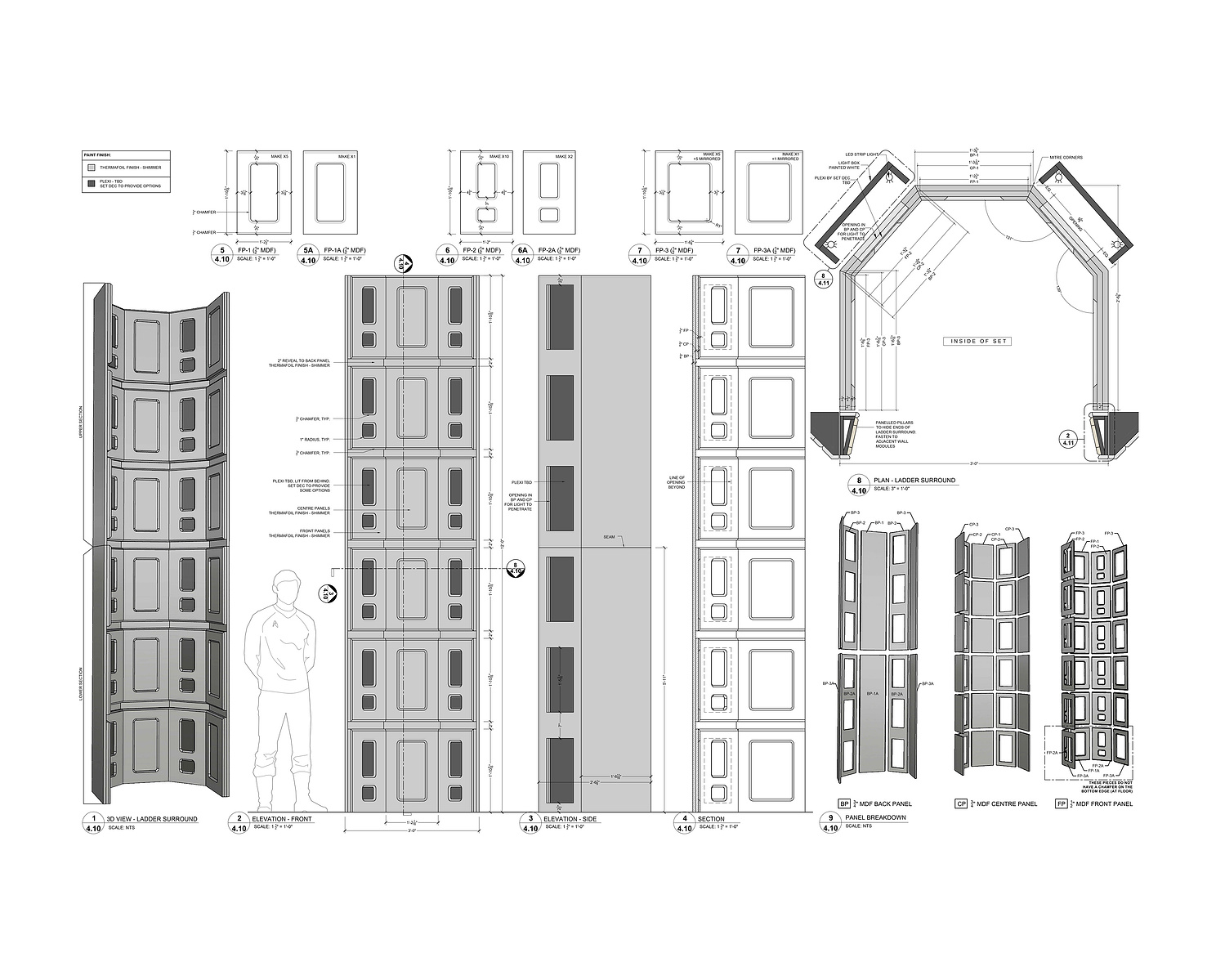
Corridors