About
Borg
FC and VOY Borg
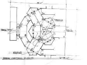
TNG Borg
Set Blueprint Archive run by Redgeneral
Share album
Borg
Borg